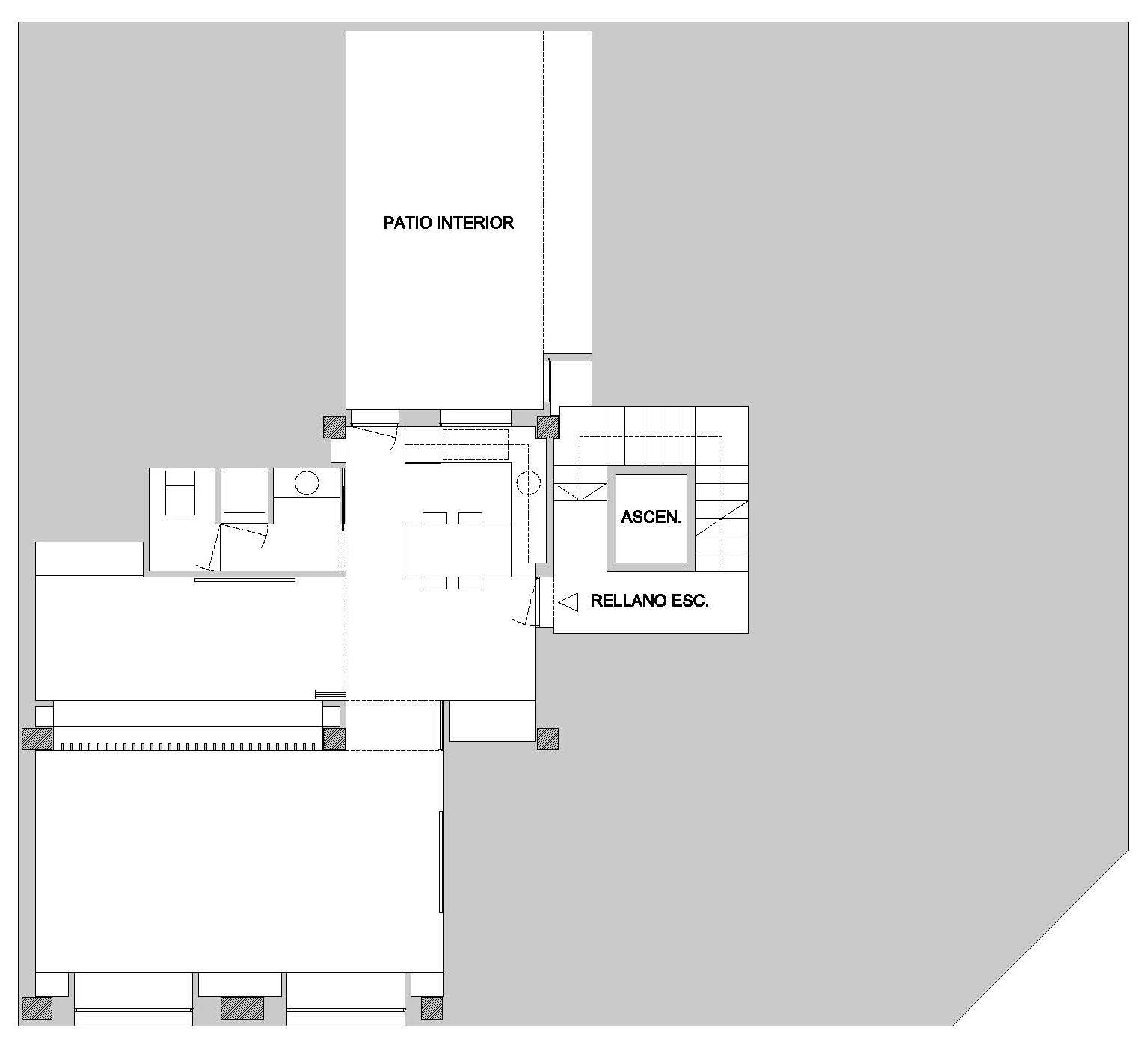
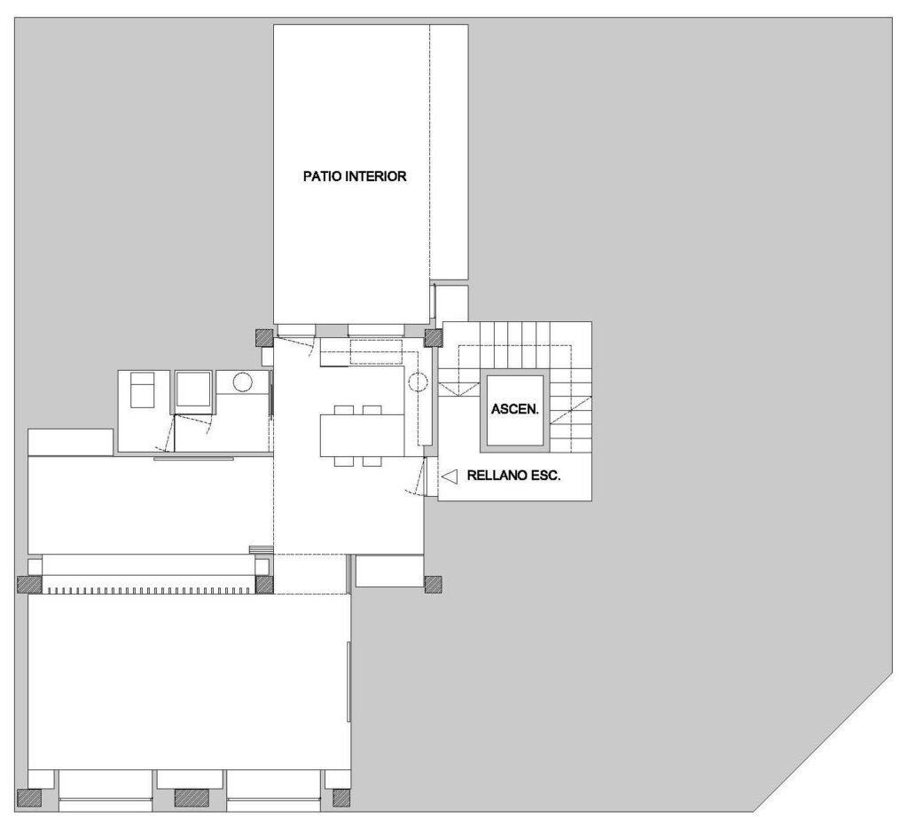
Estudio_R
Construcción: 2014 – Proyecto
Cambio de Uso Loc. a Viv. (Proyecto)
Inmegon 2003 S.L.
C/. Emperatriz Isabel 14, Madrid