Estudio_R
2019 – Proyecto
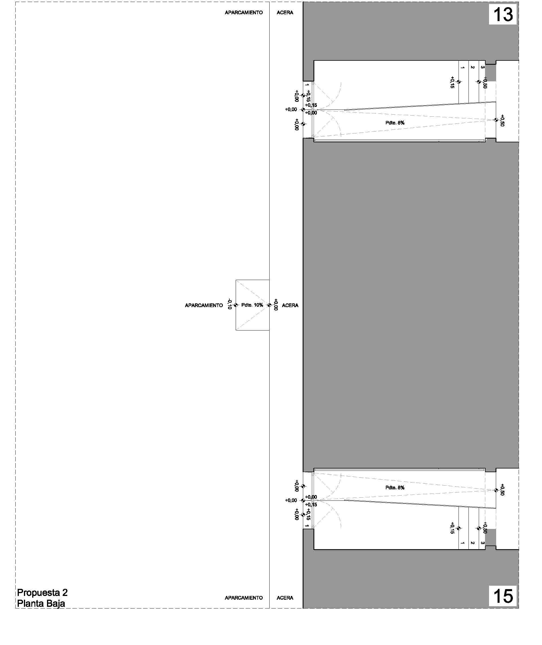
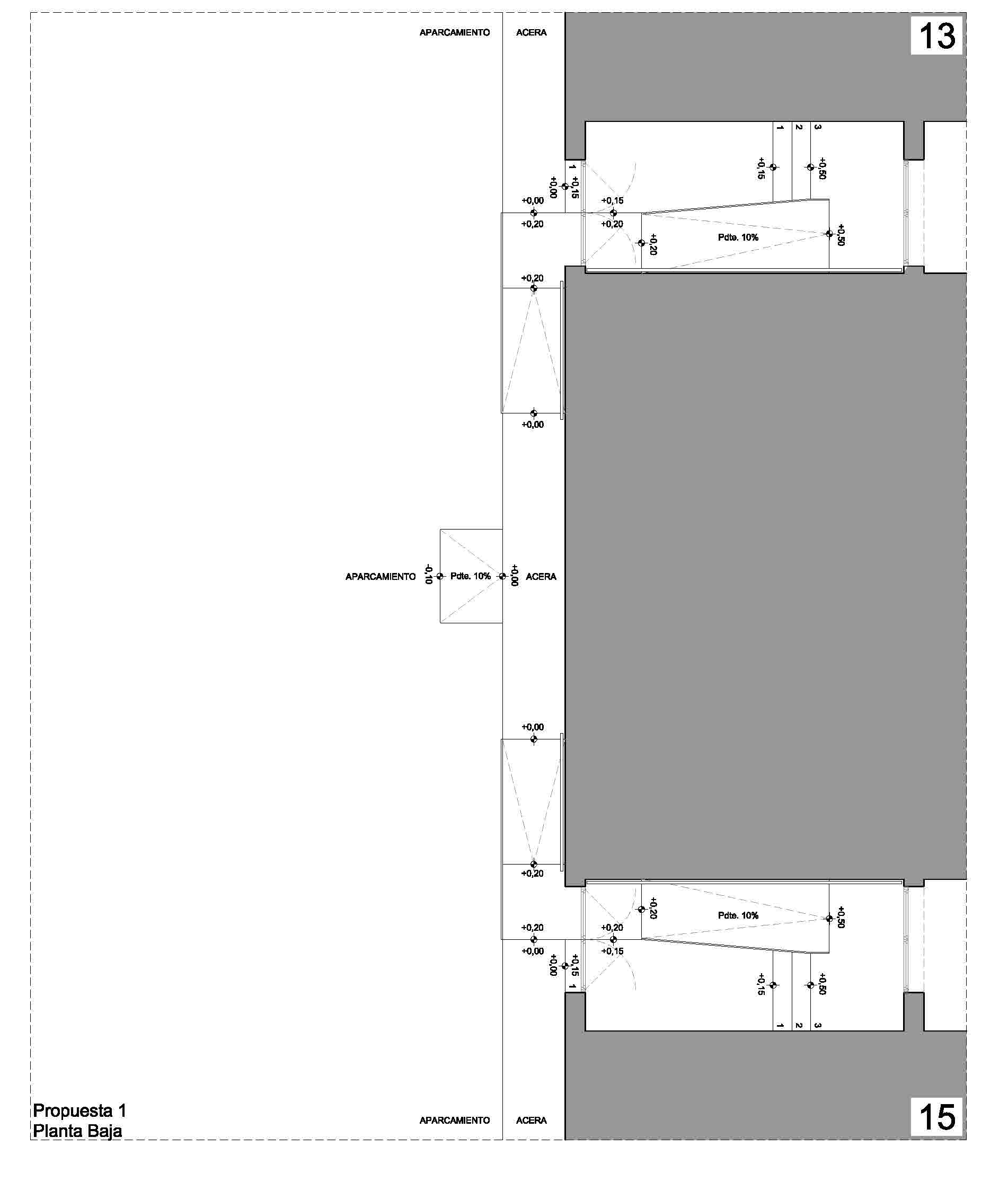
Accesibilidad (Proyecto)
COMUNIDAD DE PROPIETARIOS
C/. Mirueña 15 y 17, Madrid