Estudio_R

Proyectos

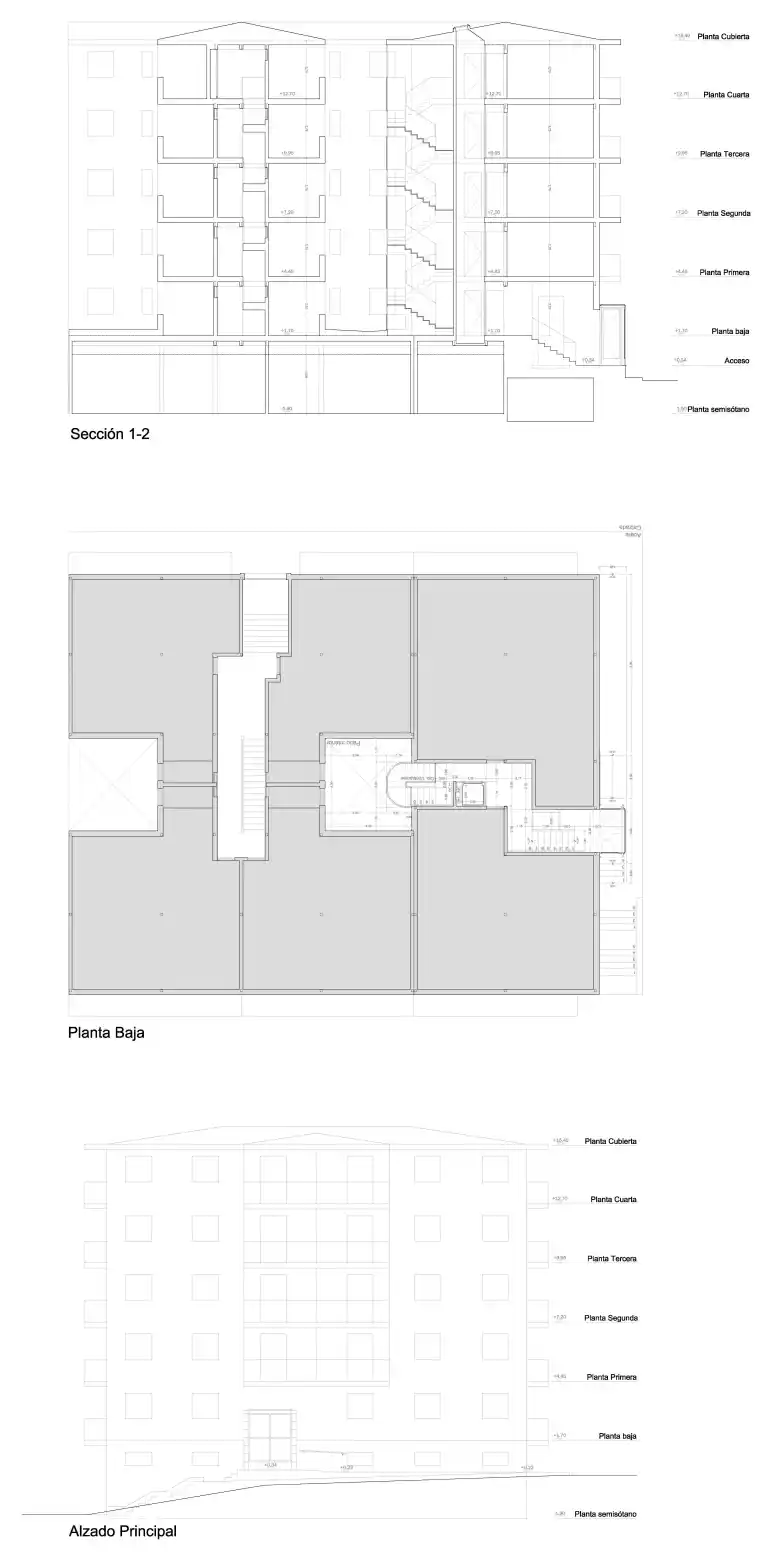
REHABILITACION / PLURIFAMILIAR

Esquemas del Proyecto

2019 – Proyecto

Accesibilidad (Proyecto)

COMUNIDAD DE PROPIETARIOS

C/. Miranda de Arga 3, Madrid

Proyetos 1990 - 2020