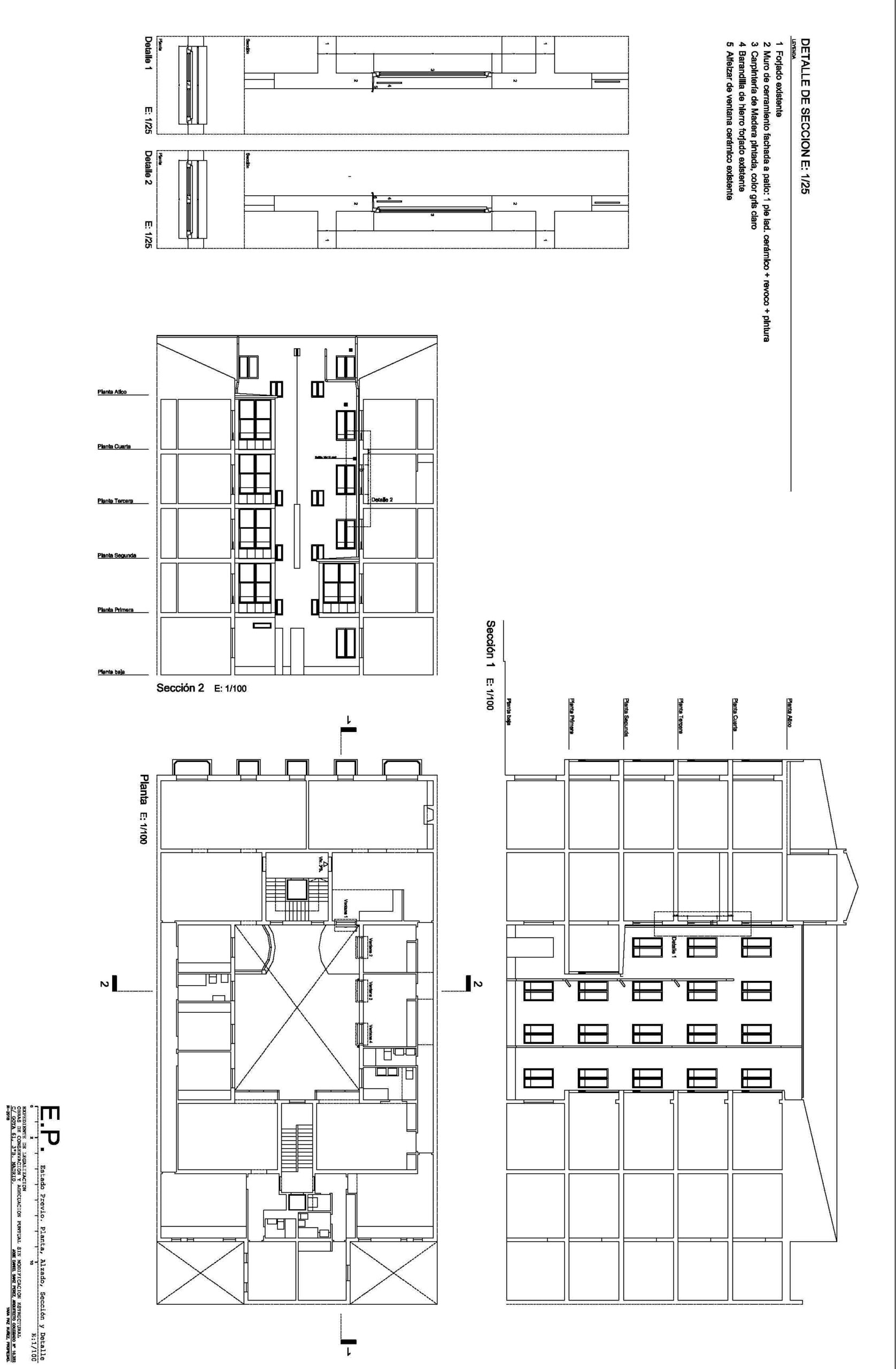
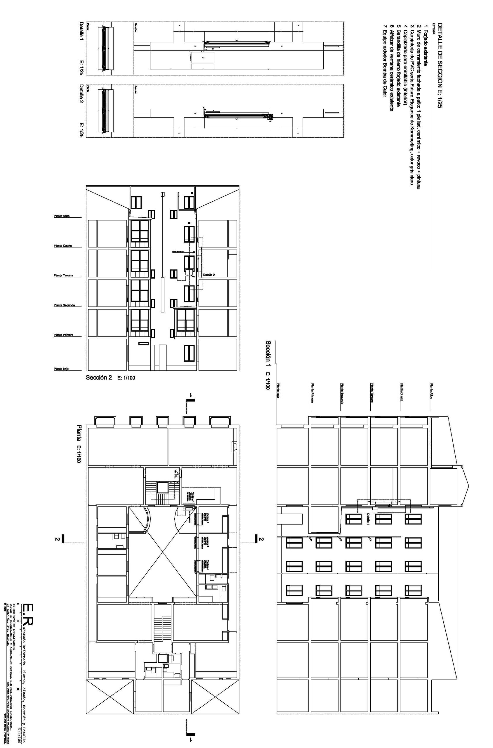
Estudio_R
Planos del Expediente de Legalización
Construcción: 2018 – Legalización Obras
Reforma de Vivienda (Expte. Legalización)
D. Yara Paz Núñez
C/. Goya 61, Madrid