Estudio_R

Proyectos

REHABILITACION / REFORMA

Estado actual

Estado reformado

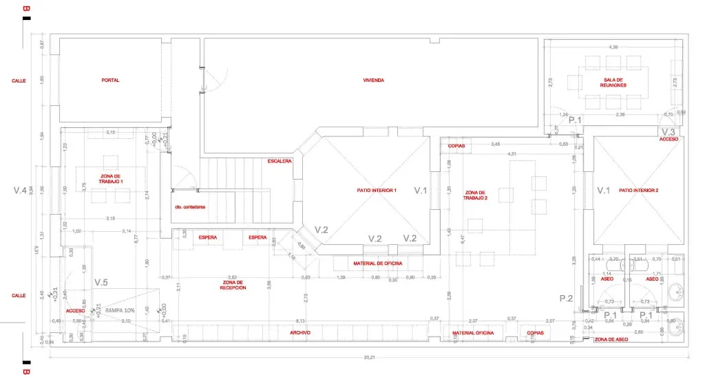
Estado reformado planta

Construcción: 2013

Local Comercial (Proyecto + DF.)

SPP AUDITORES Y CONSULTORES S.L.

C/. Gabriel Usera 35, Madrid

Proyetos 1990 - 2020