Estudio_R

Proyectos

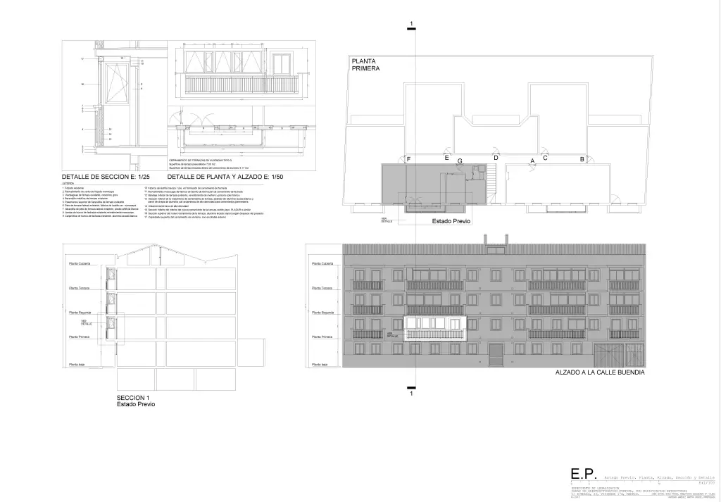
REHABILITACION / PLURIFAMILIAR

Legalización Modificación Estructural Vivienda

Construcción: 2013

Modificación Estructural (Exp. Legalización)

D. Antonio Jiménez Martinez-Conde

C/. Buendía 33, Vivienda 1ºG, Madrid

Proyetos 1990 - 2020