Estudio_R

Proyectos

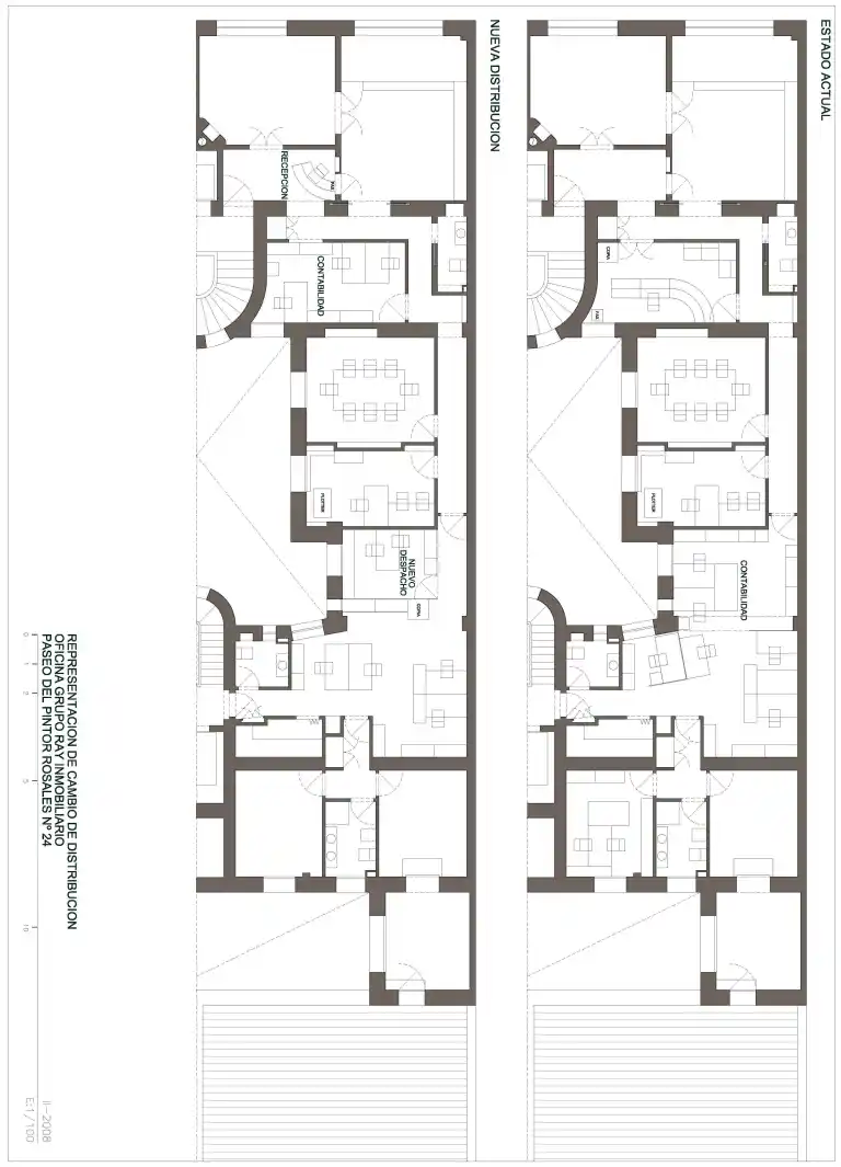
REHABILITACIÓN / COMERCIAL

Construcción: 2009

Tasación o Valoración (Informe Facultativo)

GRUPO RAY INMOBILIARIO

C/. Alhena 7, Madrid

Proyetos 1990 - 2020